Piastra di fondo Palazzoli per quadri M3 370x445 mm 550603
PAL 550603
8014950051328
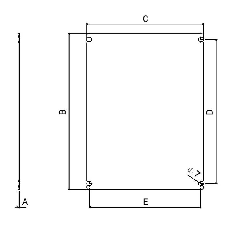
Piastra di fondo Palazzoli per quadri serie Tais Cube con le seguenti caratteristiche:
- Misura: M3
- Materiale: Acciaio
- Dimensioni: 2x442x369,5x423x362 mm (A-B-C-D-E)
- Peso: 2,65 kg
- Temperatura ambiente di stoccaggio: -50 gradi/+90 gradi
- Temperatura ambiente: -30/+90 gradi
24,30 €
24,30 €
Articoli disponibili: 32
24,30 €
Acquistalo entro e ricevilo da Venerdì, 6 Febbraio
Paga in 3 rate senza interessi per ordini da 30€ a 2000€
Per ordini tra i 120€ e i 5.000€ puoi pagare fino a 24 rate con
: 2

